
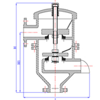
帶呼出接管呼吸閥(HXF-IV型) 帶呼出接管阻火呼吸閥(HXF-IVZ型)
Breather Valve With Discharge Nozzles Flame Arresting Breather Valve With Discharge Nozzle

帶呼出接管阻火呼吸閥“設備材質” Materials of construction:
NO | 1 | 2 | 3 | 4 | 5 | 6 |
構件 Component | 殼體 Body | 閥桿 Stem Guide | 閥盤 Pressure Disk | 閥座 Pressure Seat | 墊片 Gasket | 阻火芯件 Fire Arresting |
材質 Material | 不銹鋼 Steel 鋁合金 Aluminums 碳鋼 Casting | 304 316 316L PTFE | 304 316 316L PTFE | 304 316 316L PTFE | 304 316 316L PTFE | 304 316 316L PTFE |
注:連接標準:HG 、GB、 ANSI、 JIS、 DIN等等.
Standard Connection:HG、GB、ANSI、JIS、DIN、ect.
操作壓力:-295pa-+98000pa (-30mmH2O——+10000mmH2O)
Operating Pressure:-295pa-+98000pa (-30mmH2O——+10000mmH2O)
帶呼出接管阻火呼吸閥“尺寸表” Dimension table:
DN | 25 | 32 | 40 | 50 | 80 | 100 | 150 | 200 | 250 | 300 |
L | 280 | 300 | 320 | 320 | 450 | 450 | 620 | 750 | 850 | 1100 |
H | 300 | 320 | 350 | 350 | 500 | 500 | 600 | 700 | 820 | 900 |
帶呼出接管阻火呼吸閥“訂貨須知” Order Construction:
1、訂貨時請注明產品尺寸、操作壓力及材質。
Please give clear indication of Dimension,operating pressure and material.
2、當需要其他標準法蘭、材質或操作壓力時請在訂貨時注明。
Please give clear indication of flange,material and operating pressure if you need other standard.
返回:呼吸閥系列
專家為您提供全天候防凍呼吸閥描述及相關參數
2015-07-09人孔與呼吸閥搭配使用的作用
2014-08-06苦撐待變只為阻火呼吸閥能夠再創輝煌
2015-12-09卓澤環保再談如何選擇合適的呼吸閥
2016-08-04在安澤法蘭閥門應注意的地方
2017-04-13安全管理系統可以讓閥門更加安全的進行使用
2014-08-06阻火呼吸閥公司緊跟年代,才干立于不敗之
2017-05-20天氣呼吸閥,如日常維護
2016-06-28阻火呼吸閥型號設計方法
2017-10-26流體管路控制裝置離不開呼吸閥
2014-08-06