
簡要介紹:工廠自主研發,采用先進的技術,提供過壓保護,減少了物料蒸發和排放,從而降低物料的損耗和處理排放的成本。。從DN25~DN300多個規格產品性能圴達到SY/T0511:2010.1規范標準,同時達到API2000:2014標準要求,可通過第三檢測并提供檢測證書。產品起跳靈活,真正實現零泄露。
ZPV型先導式呼吸閥是通過對ZPV型呼吸閥的技術改良,可在所有ZPV呼吸閥型號上增加先導閥而產生的高性能產品,此類呼吸閥具有反應靈敏、排量大、可做到0泄漏工藝等特點,是市場上現有的一種先進的設計和技術,提供過壓保護,減少了蒸發和排氣量,從而降低產品的損失和處理排放的成本。
先導式呼吸閥是高性能呼吸閥產品的一部分,質量和性能已完全超出市場標準閥門性能,在酸和氨的溶液罐中有著較好的應用,有著突出和無可比擬的特點:高性能密封閥盤和先進的復合材料制成的閥座和閥芯。
獨特性能和優勢
★能有效防凍、防靜電及防粘附 ★反應靈敏
★通過精密部件控制閥盤活動 ★大排量
★ 0泄漏工藝 ★可通過設備回收罐內保護氣體
★適用于-45~260℃溫度區間 ★適配市場各種連接方式
訂貨選型
型號 | 規格 | 壓力/真空 | 溫度 |
ZPV型先導式呼吸閥 | 1”(25mm)-12”(300mm) | 壓力:100-10000mmH2O | -45℃-260℃ |
殼體 | 閥芯 | 閥芯密封件 | 閥體密封件 | 連接標準 |
鋁合金 | 304不銹鋼 | FEP特氟龍 | 三元乙丙橡膠 | 螺紋(ANSI及GB) |


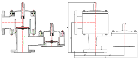
ZPV-II型尺寸和大約重量
口徑SIZE | L | L1 | L2 | H | H1 | 碳鋼殼體 | |
DN | In. | ||||||
25 | 1 | 510 | 175 | 230 | 410 | 230 | 32.5 |
40 | 1-1/2 | 510 | 175 | 230 | 410 | 230 | 32.5 |
50 | 2 | 510 | 175 | 230 | 415 | 235 | 34 |
65 | 2-1/2 | 510 | 175 | 230 | 415 | 235 | 34 |
80 | 3 | 510 | 175 | 230 | 420 | 240 | 35 |
100 | 4 | 585 | 195 | 270 | 460 | 270 | 53 |
150 | 6 | 670 | 220 | 310 | 575 | 345 | 65 |
200 | 8 | 795 | 255 | 370 | 685 | 420 | 150 |
250 | 10 | 915 | 290 | 430 | 785 | 485 | 180 |
300 | 12 | 1030 | 320 | 490 | 895 | 555 | 230 |
注:更大尺寸可以定制,也可以按客戶提供圖紙加工。
不同的區域需要使用不同的閥門
2014-08-06水處理行業中極重要的設備之阻火呼吸閥
2014-10-30氮封為什么需要氮封閥和呼吸閥配合使用?
2015-08-14呼吸閥的檢查和保養技巧
2014-11-09天氣呼吸閥兩個產業發展和水處理
2016-06-28核電閥門毛利率約40%,你怎么看?
2016-02-26卓澤環保成功制造1700℃耐高溫阻火呼吸閥
2015-07-14內浮頂儲罐呼吸閥的特征及參數
2014-08-06靠關系發展的阻火呼吸閥企業成長速度逆天
2015-10-13阻火呼吸閥已廣泛應用于電廠脫硫脫硝系統
2018-05-03